

市場一部:0571-28812826
市場二部:0571-28115181
市場三部:0571-28992602
瀏覽次數: 次
超聲波明渠流量計用途:
YEH6000X-T系列超聲波明渠流量計配套矩形堰使用,測量精度更高。儀表與必須與薄壁矩形堰配用,主要用來測量具有自由流條件的渠道內的污水流量。儀表工作時,傳感器不與被測流體接觸,避免了渠道內污水的沾污和腐蝕。用于測量污水流量,可以比其它形式的儀表,具有更高的可靠性。超聲波明渠流量計是用于測量企業自流管(渠)道污水排放計量的新型流量儀表,簡稱“污水流量計”。它廣泛用于石油、化工、紡織、制藥行業的污水排放計量,是城市污染治理和環保部門監控污水排放的必要儀表之一,也是水利部門農灌水排放計量的必備儀表。
超聲波明渠流量計特點:
該超聲波明渠流量計采用水力測流、超聲波測位、微電腦處理、數字顯示等技術,能在較惡劣的環境下安裝、自動計量,具有較高的可靠性和較強的抗干能力。安裝維護方便,讀數簡捷。
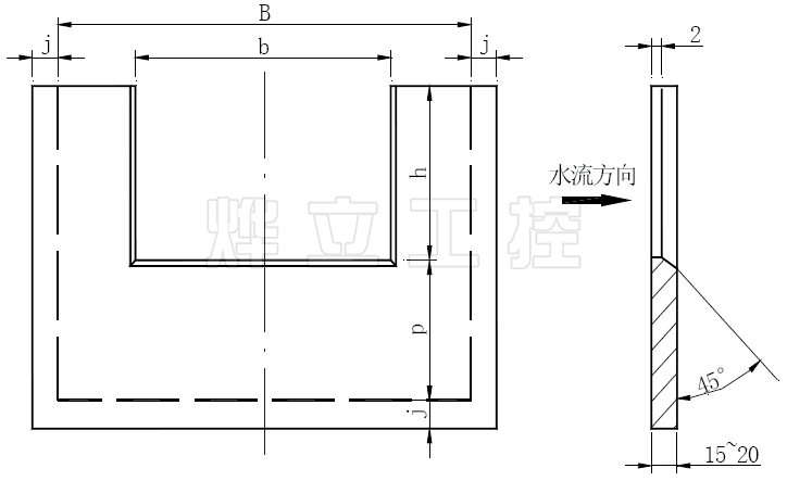
矩形堰(rectangular weir)
材質
l 15~20mm厚的玻璃纖維不飽和聚酯復合材料(玻璃鋼)。 流量越大,相應增加壁厚。
注意事項
l 矩形口處的尺寸要準確、緣臺平直、光滑。板面光滑、平整、無扭曲。
l 矩形堰的中心線要與渠道的中心線重合。
l j為堰板嵌入渠道墻的部分,尺寸請用戶根據現場情況而定。

常用超聲波明渠流量計矩形堰安裝尺寸(單位:mm)
| 序號 | 流量范圍(噸/小時) | 適用渠道 | B | b | h | p | 流量參數 | ||
| Q(min) | Q(max) | >寬×高 | n | C | |||||
| 1 | 0.04 | 85 | >500×500 | 500 | 200 | 163 | 337 | 1.5 | 1280 |
| 2 | 0.05 | 195 | >650×650 | 650 | 260 | 239 | 411 | 1.5 | 1660 |
| 3 | 0.08 | 414 | >750×750 | 750 | 375 | 308 | 442 | 1.5 | 2406 |
| 4 | 0.10 | 803 | >850×850 | 850 | 510 | 387 | 463 | 1.5 | 3318 |
| 5 | 0.15 | 1662 | >1000×1000 | 1000 | 700 | 501 | 499 | 1.5 | 4669 |
| 6 | 0.19 | 3332 | >1250×1250 | 1250 | 875 | 683 | 567 | 1.5 | 5886 |
| 7 | 0.26 | 6504 | >1450×1450 | 1450 | 1160 | 857 | 593 | 1.5 | 8178 |
| 8 | 0.33 | 12643 | >1800×1800 | 1800 | 1440 | 1142 | 658 | 1.5 | 10344 |
| 9 | 0.48 | 26396 | >2150×2150 | 2150 | 1935 | 1453 | 697 | 1.5 | 15060 |
| 10 | 0.62 | 52524 | >2700×2700 | 2700 | 2430 | 1929 | 771 | 1.5 | 19596 |

注意事項
◆矩形口處的尺寸要準確、綜臺平直、光滑。板面光滑、平整、無扭曲。
◆矩形堰的中心線要與渠道的中心線重合。
◆j為堰板嵌入渠道墻的部分,尺寸請用戶根據現場情況而定。
